Brimley
Brimley
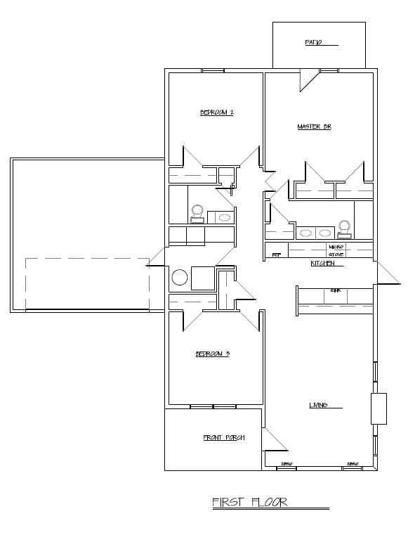
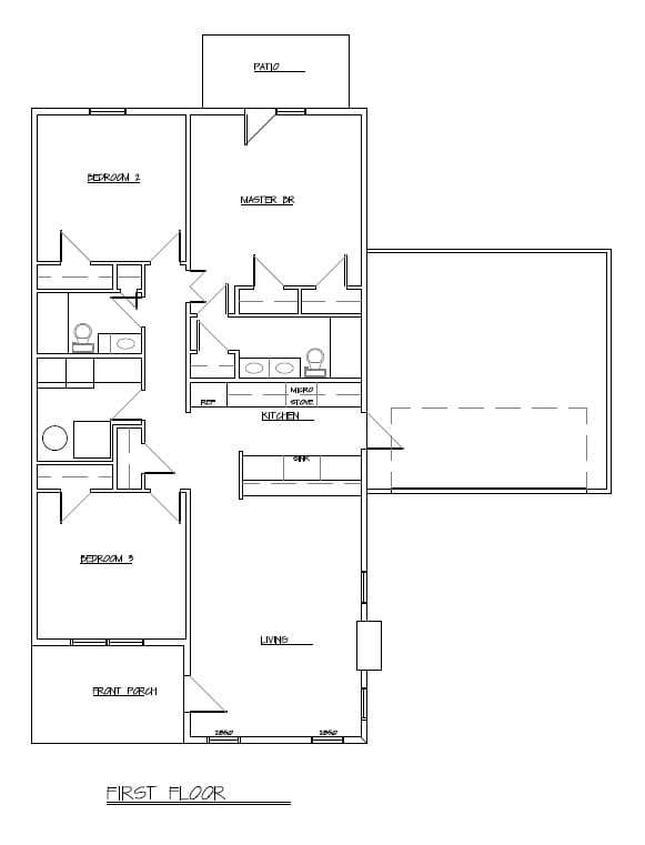
FIRST FLOOR 1,300 SF
At around 1300 SF, this 3 bedroom 2 bath house combines the small house approach with efficient green construction for a very attractive initial cost and low utility bills. There is no more comfortable heat than radiant. The Brimley incorporates slab on grade construction with that in mind. Combined with solar thermal, it’s the best
of both worlds, comfort and efficiency.
Work with GreenBau architects to shape the Brimley around your personality, from shotgun southern style to a traditional urban infill. Any way you choose, you will be able to sit on the front porch with low cost peace of mind.
Plans


